[ Godella - 2026 ]

Casa La Cantera

Casa La Cantera
Plano emplazamiento 1:1000
Plano emplazamiento 1:1000
Casa La Cantera
Casa La Cantera
Casa La Cantera
Casa La Cantera
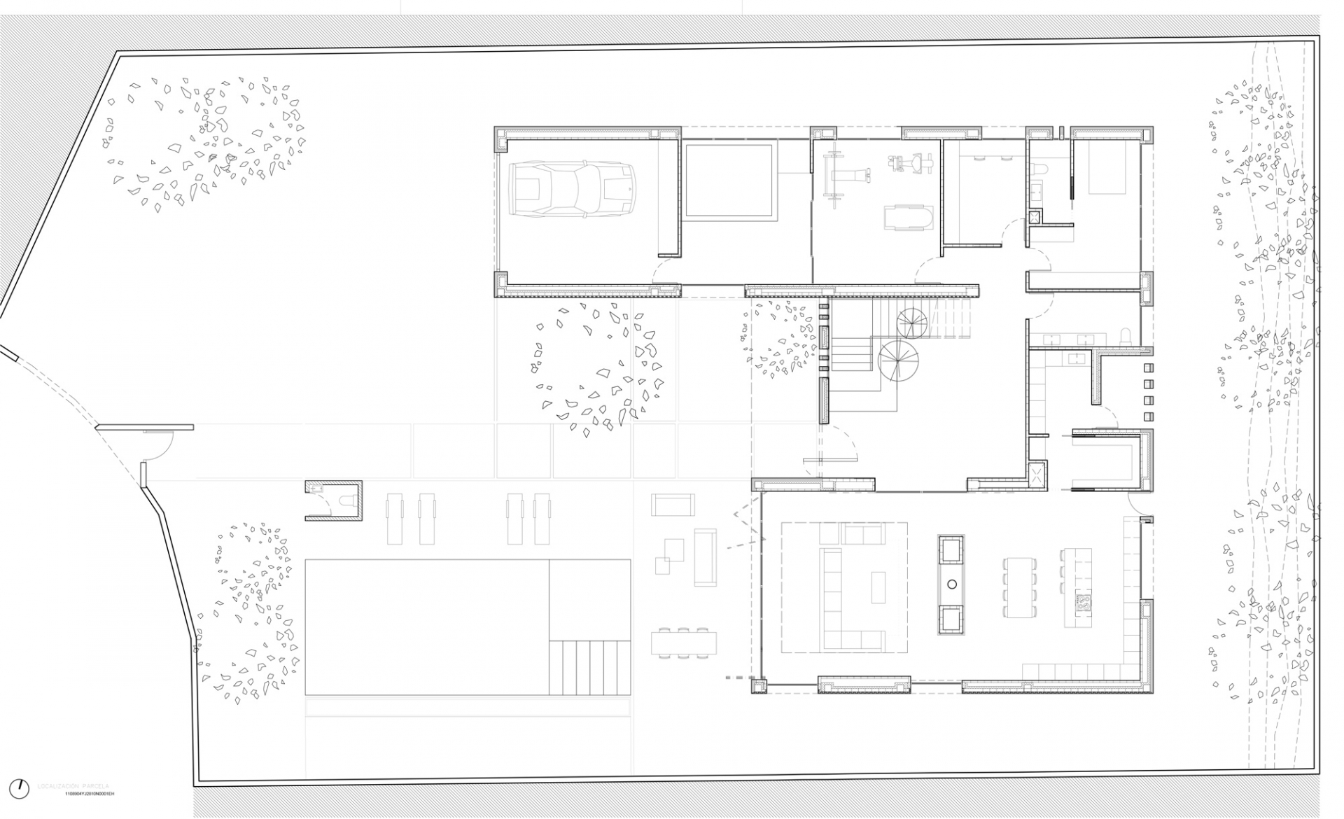
 Planta baja 1:120
Planta baja 1:120
Casa La Cantera
Alzado noroesta 1:150
Alzado noroesta 1:150
Casa La Cantera
Casa La Cantera
Casa La Cantera
Casa La Cantera
Casa La Cantera
Localización

Godella

Superfície

200m2

Categoría(s)

Edificación

Fotografía

Marta Benlloch